Ваш город — Москва?
Аполлон
Дом из клееного бруса VZ-349
Дом из клееного бруса VZ-349
Дом из клееного бруса VZ-349
Дом из клееного бруса VZ-349
Дом из клееного бруса VZ-349
Дом из клееного бруса VZ-349
Дом из клееного бруса VZ-349
Дом из клееного бруса VZ-349
Дом из клееного бруса VZ-349
Дом из клееного бруса VZ-349

Дом из клееного бруса VZ-349

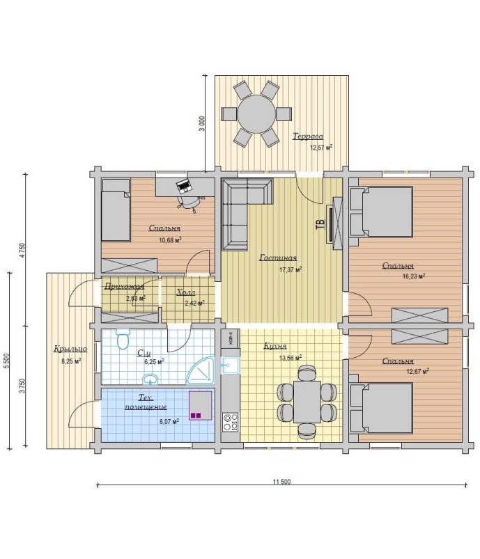
Площадь дома

96 м²

2
icon
спальни
1
icon
этаж
6
icon
комнат
6₽
icon Проект в день оплаты
icon Любые изменения в планировку
image
Екатерина Кротова
Менеджер по работе с клиентами
icon Получить смету на стройку
icon Задать вопрос в whatsapp
Планировка
image
А
Б
В
Г
Д
image
image
image
image
image image image image