Ваш город — Москва?
Индиго
Дом из клееного бруса VZ-346
Дом из клееного бруса VZ-346
Дом из клееного бруса VZ-346
Дом из клееного бруса VZ-346

Дом из клееного бруса VZ-346

Площадь дома

122 м²

2
icon
спальни
2
icon
этажа
6
icon
комнат
5₽
icon Проект в день оплаты
icon Любые изменения в планировку
image
Екатерина Кротова
Менеджер по работе с клиентами
icon Получить смету на стройку
icon Задать вопрос в whatsapp
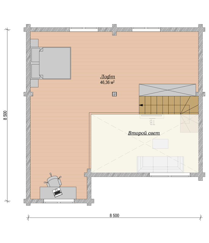
Планировка
image
76
image
46
А
Б
В
Г
Д
image
image
image
image
image image image image