Ваш город — Москва?
Луизиана
Дом из клееного бруса VZ-358
Дом из клееного бруса VZ-358
Дом из клееного бруса VZ-358
Дом из клееного бруса VZ-358
Дом из клееного бруса VZ-358
Дом из клееного бруса VZ-358

Дом из клееного бруса VZ-358

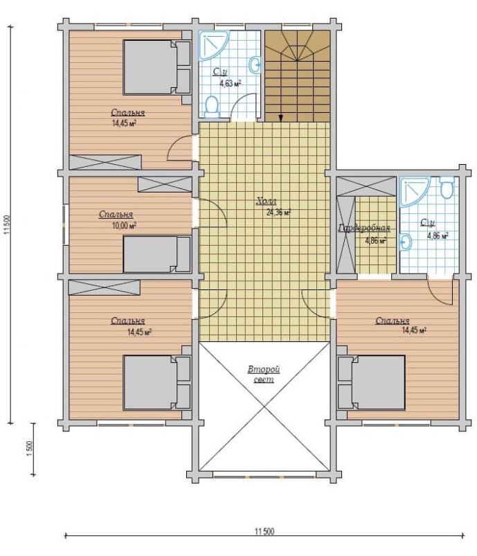
Площадь дома

276 м²

3
icon
спальни
2
icon
этажа
11
icon
комнат
3
icon
сан узла
0₽
icon Проект в день оплаты
icon Любые изменения в планировку
image
Екатерина Кротова
Менеджер по работе с клиентами
icon Получить смету на стройку
icon Задать вопрос в whatsapp
Планировка
image
184
image
92
А
Б
В
Г
Д
image
image
image
image
image image image image