Ваш город — Москва?
Свиристель
Дом из клееного бруса VZ-401
Дом из клееного бруса VZ-401
Дом из клееного бруса VZ-401
Дом из клееного бруса VZ-401
Дом из клееного бруса VZ-401
Дом из клееного бруса VZ-401

Дом из клееного бруса VZ-401

Площадь дома

197 м²

3
icon
спальни
2
icon
этажа
8
icon
комнат
2
icon
сан узла
0₽
icon Проект в день оплаты
icon Любые изменения в планировку
image
Екатерина Кротова
Менеджер по работе с клиентами
icon Получить смету на стройку
icon Задать вопрос в whatsapp
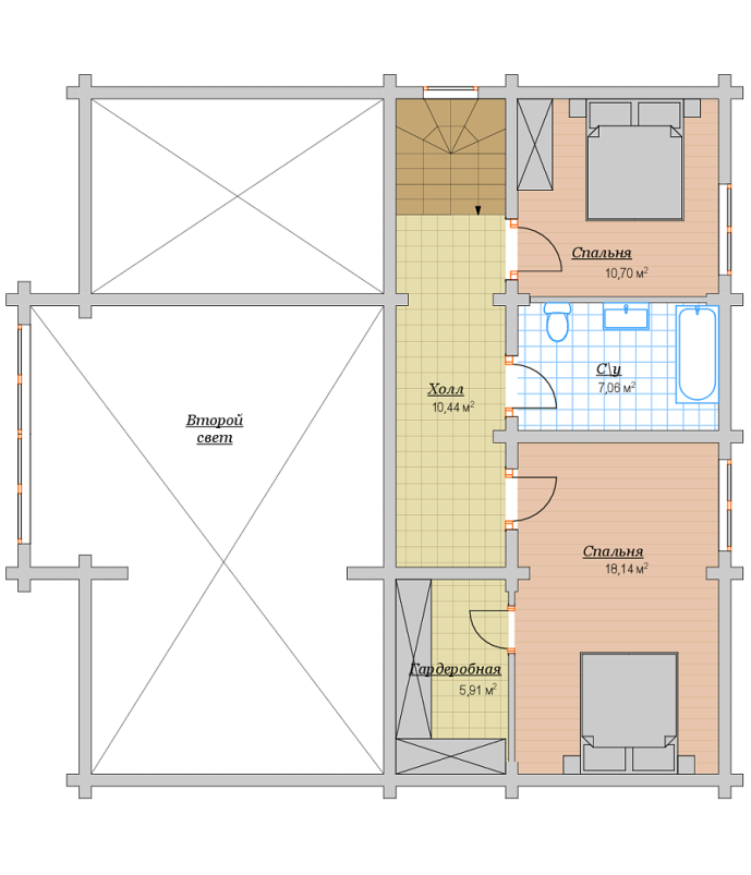
Планировка
image
138
image
59
А
Б
В
Г
Д
image
image
image
image
image image image image