Ваш город — Москва?
Византия
Проект дома «Византия» БП-323
Проект дома «Византия» БП-323
Проект дома «Византия» БП-323
Проект дома «Византия» БП-323

Проект дома «Византия» БП-323

Площадь дома

195 м²

2
icon
спальни
1
icon
этаж
8
icon
комнат
2
icon
сан узла
23 000₽
icon Проект в день оплаты
icon Любые изменения в планировку
image
Екатерина Кротова
Менеджер по работе с клиентами
icon Получить смету на стройку
icon Задать вопрос в whatsapp
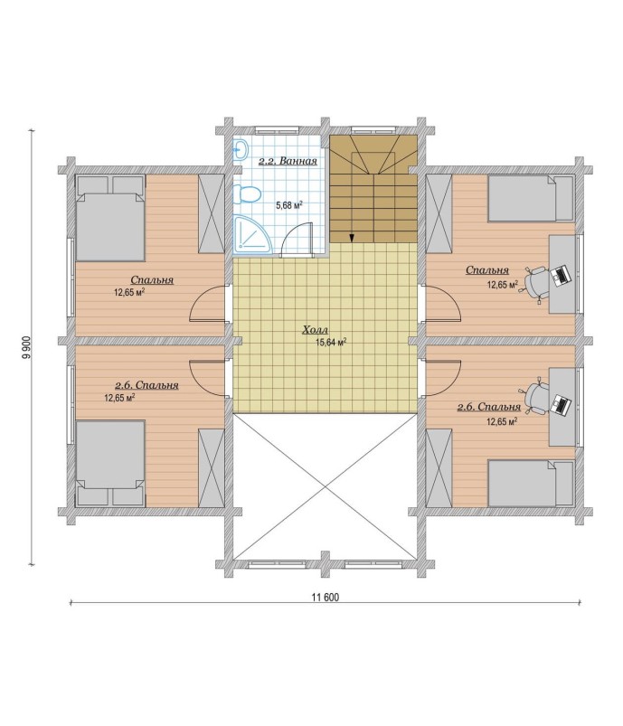
Планировка
image
123
image
72
О проекте
Проект дома «Византия» БП-323

Этот двухэтажный коттедж из профилированного бруса площадью 195 м² создан для комфортной загородной жизни в окружении природы. Дом сразу производит впечатление светлого и просторного пространства: панорамные окна наполняют помещения естественным светом и открывают красивые виды на участок и окружающий пейзаж. Высокие потолки и второй свет в гостиной усиливают ощущение объема, делая общую зону особенно воздушной и уютной. Именно здесь удобно собираться всей семьей, проводить тихие вечера и наслаждаться домашней атмосферой у камина.

На первом этаже расположена кухня, объединенная с обеденной зоной, — удобное и функциональное пространство для повседневной жизни и приема гостей. Современная встроенная мебель и техника делают приготовление еды максимально практичным и комфортным. Из кухни предусмотрен выход на террасу, где приятно завтракать на свежем воздухе, устраивать семейные ужины или проводить летние встречи с близкими. Второй этаж отведен под четыре спальни, каждая из которых оформлена с акцентом на уют и личное пространство. Большие окна делают комнаты светлыми и открывают приятные виды на окрестности. Дом оснащен современными инженерными коммуникациями и системами безопасности, благодаря чему сочетает природную эстетику дерева, функциональность и высокий уровень комфорта для всей семьи.

А
Б
В
Г
Д
image
image
image
image
image image image image